CAFE MARKÓ

 

Architects: Slava Balbek, Daria Ovechenko, Sasha Martyniuk, Nata Kurylenko, Iryna Holovata, Anastasiia Romaniv,
Anton Syvashenko, Uliana Dzhurliak, Oleksiy Kharoshka, Daria Kushnir, Alesya Trohimik
Project managers: Anna Viktorova, Yana Laskavenko
Coordinator: Arina Petrenko
Project area: 333 sq. m
Year: 2022
Location: Kyiv, Ukraine
Photo credits: Andriy Bezuglov, Maryan Beresh

 
 
 

ABOUT

 
 

Markó is located on the first floor of the Sophia Hotel near Sophia Square in Kyiv. According to its founders, the cafe combines a lively morning buzz with the measured hum of a teeming hall at lunchtime as well as cozy candle-lit dinners with wine and nibbles.

***

Markó – кафе, розташоване на першому поверсі готелю Sophia Hotel Kyiv біля Софійської площі. Засновники описують заклад як місце, яке поєднує ранкову динамічну атмосферу з розміреним гулом повного залу в ланч-тайм і затишними вечерями зі свічками й вином.

 
 
 

CONCEPT

 
 

The cafe's name pays homage to the life and work of Marko Vovchok, who lived in Kyiv for some time and became a symbol of independent, progressive, and liberal values in Ukrainian culture. Considered to be one of the first influential modernist authors in Ukraine and a bright representative of the intelligentsia of her time, she traveled a lot, lived in various countries, and spoke several languages.

***

Назва кафе відсилає до життя та творчості Марко Вовчок, яка певний час мешкала в Києві та виступала в українській культурі символом незалежного, прогресивного та відкритого світу. Яскрава представниця інтелігенції свого часу, жінка багато подорожувала, жила в багатьох країнах та володіла кількома мовами.

 
 
 
 

The cafe complements the design concept of the Sophia Hotel. According to the client’s vision, its target audience is primarily diplomats and people visiting Kyiv on business trips. These guests can afford to stay at an international chain of premium hotels yet are looking for a more authentic experience.

***

Кафе продовжує та доповнює дизайн-концепцію готелю Sophia – за задумом власника, його аудиторією мали стати насамперед дипломати та гості Києва, які прибувають у місто у відрядженнях. Це клієнти, які можуть дозволити собі зупинитися в міжнародних мережевих преміумготелях, проте шукають більш автентичного досвіду.

 
 

Markó Cafe brand identity by graphic designer Daria Levchuk

 

TASKS

 
 

In addition to accommodating hotel guests, the cafe was designed to attract a diverse range of customers. Its main entrance is not through the reception but through the courtyard visible from the street. The seating arrangement is adjustable, making it ideal for large groups, such as teams of companies staying in the hotel.

***

Кафе мало бути привабливим не тільки для гостей готелю: основний вхід до закладу проходить не через рецепцію Sophia Hotel Kyiv, а через двір – сюди легко зазирнути з вулиці. Посадку необхідно було підлаштувати і під великі групи, на випадок, якщо в готелі будуть зупинятися команди або представники компаній.

 
 
 
 

The client requested an interior that played on warm colors, natural materials, and plants. As a result, our team opted for a color scheme of burgundy and green, complemented by brass elements.

***

За побажанням замовника, інтер'єр мав бути оформлений у теплих кольорах з використанням природних матеріалів та рослин. У результаті для готелю та кафе були обрані бордові та зелені відтінки у поєднанні з латунними елементами.

 
 
 
 

 We also carefully selected lush plants that could adapt to the cafe's different conditions and look appealing year-round.

***

Важливим етапом декорування приміщень кафе став підбір озеленення. На запит замовників команда бюро обрала рослини, які були б пишними, могли пристосуватись до умов кафе та привабливо виглядати в усі пори року.

 
 
 

DESIGN

 
 

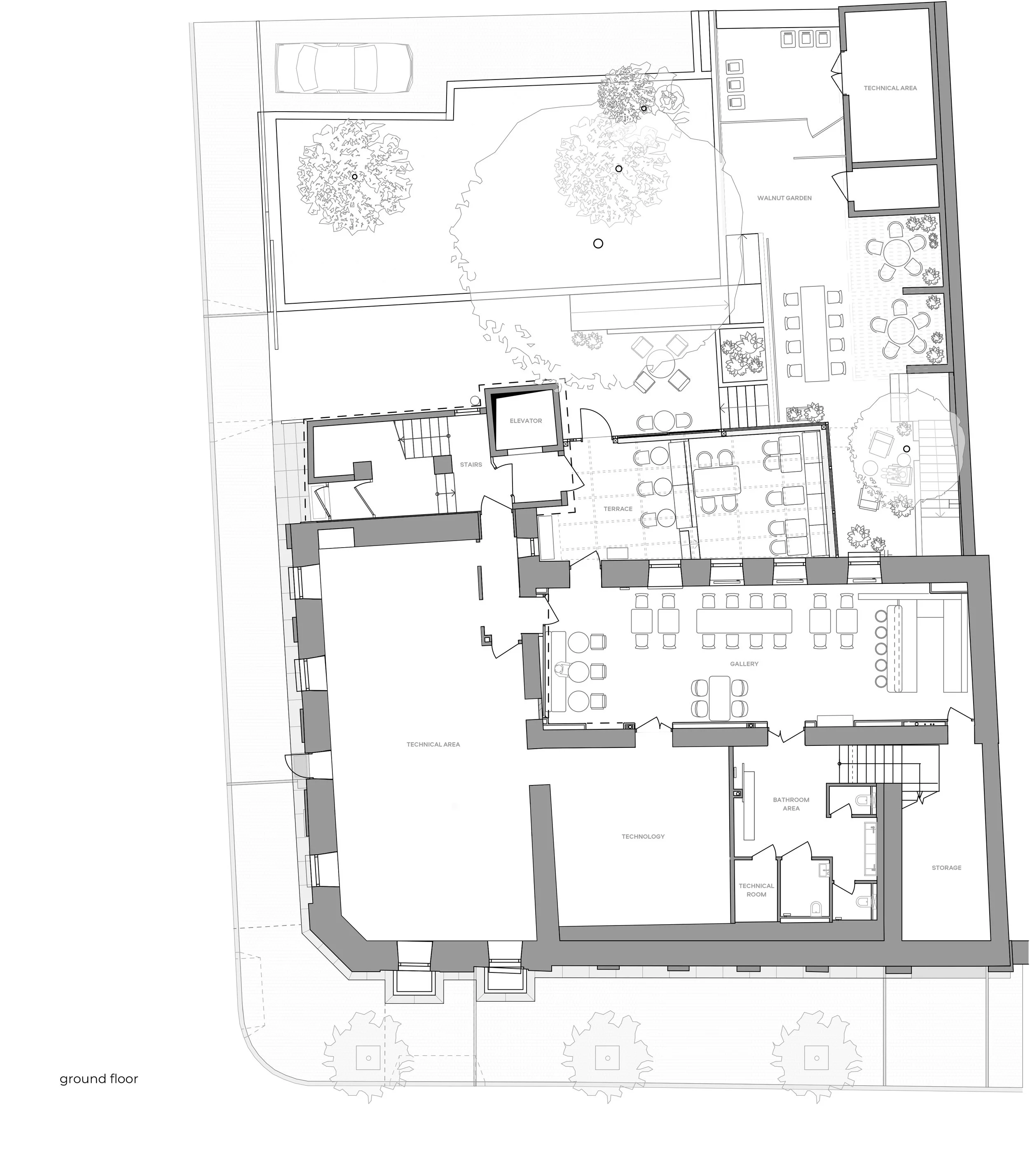
The cafe comprises three distinct spaces. Elaborating on the concept of a revived historic space, we furnished the cafe’s interior with vintage pieces sourced at flea markets and second-hand shops, as well as new furniture.

***

Територія закладу розділена на три простори. Підтримуючи концепцію історичної будівлі, яка отримала нове життя, ми облаштували інтер'єр кафе як старими меблями, які шукали на вінтажних барахолках та секонд-хендах, так і новими.

 
 
 
 
 
 
 

The Gallery area features an open contact bar and tables that can be used for hotel breakfasts or regular dining and a buffet space if needed. The wall behind the bar counter is lined with glass, visually expanding the space.

***

Зона Gallery є обідньою залою з відкритим контактним баром. Столи розміщені таким чином, щоб максимально ефективно використовувати їх під час готельних сніданків (за потреби тут можна організувати лінію шведського столу), та впродовж для, коли кафе функціонує в звичайному режимі. Стіна за барною стійкою облицьована склом та візуально розширює простір.

 
 
 
 

The Walnut Garden area is a serene courtyard with a communal table and a sprawling walnut tree in the center. The spacious communal table is ideal for large private dinners. The yard, designed to feel like a shared urban space, is perfect for sitting down with a book or even having a lie-down on the green lawn. This variability is accentuated by different furniture types and materials.

***

Зона Walnut Garden – це тихе подвір'я, у центрі якого росте розлогий горіх. Тут облаштована літня тераса кафе. Великий комунальний стіл задуманий як ідеальне місце для великої приватної вечері. Подвір'я облаштоване так, щоб виглядати як спільний міський простір, куди можна просто зайти перепочити у кріслах, почитати книгу або навіть полежати на газоні. Цю варіативність підкреслено різними типами і матеріалами меблів.

 
 
 
 

The Gallery and Walnut Garden spaces are united by the Terrace area, which serves as a covered winter garden with a glass ceiling. Visually combining the two spaces, the glass terrace becomes its organic continuation. The space mimics the topography of the landscape, which is why the tables are placed on different levels.

***

За задумом архітекторів, простори Gallery та Walnut Garden об'єднані зоною Terrace: це затишний зимовий сад, оформлений як крита тераса зі скляною стелею. Вона візуально поєднує простір будівлі з двором та є його органічним продовженням. Простір повторює рельєф ділянки, тому столи розміщені на різних рівнях.

 
 
 
 

The terrace looks particularly captivating in the evening. Equipped with soft, warm lighting, it glows like a firefly in the dark, inviting guests to take a look inside. The sliding partitions can be removed in the summer, creating a weightless glass ceiling without any walls. The seating is designed for small companies of four people per table.

***

Тераса притягує увагу гостей ввечері: оснащена максимально теплим освітленням, вона світиться, наче світляк у темряві, запрошуючи гостей зазирнути всередину. Ця зона обладнана розсувними перегородками, які знімаються, завдяки чому у теплу пору року тераса може функціонувати як скляний навіс без стін. Посадка тут облаштована столами-четвірками та розрахована на невеликі компанії.

 
 
 
 

Cafe Markó offers a unique experience that captures the cosmopolitan spirit of Marko Vovchok herself and the diversity of its visitors, who come from all over the world and, despite different languages and cultural traditions, feel at home in this warm and inviting space.

The cafe's design pays close attention to noise insulation, given its proximity to the hotel rooms. Additional sound-absorbing panels are used on the ceiling to minimize any noise.

***

Космополітизм Марко Вовчок став натхненням для дизайну Markó: відвідувачі кафе та гості Sophia Hotel приїздять сюди з різних куточків планети та, незважаючи на різну мову і культурні традиції, знаходять багато спільного і відчувають себе, як вдома.

Оскільки номери готелю облаштовані безпосередньо над кафе, будівництво вимагало ефективної шумоізоляції, щоб гамір на першому поверсі не заважав гостям. На стелі використані додаткові панелі, які поглинають звук та ізолюють його від номерів згори.

 
 

TEAM