PAC LIBRARY

Architects: Slava Balbek, Oleg Matushchenko
Product designer: Sasha Kozynets
Project manager: Borys Dorogov
Project Area: 50 sq. m
Project Year: 04/2016
Location: Kyiv, Ukraine
Photo credits: Andrey Bezuglov

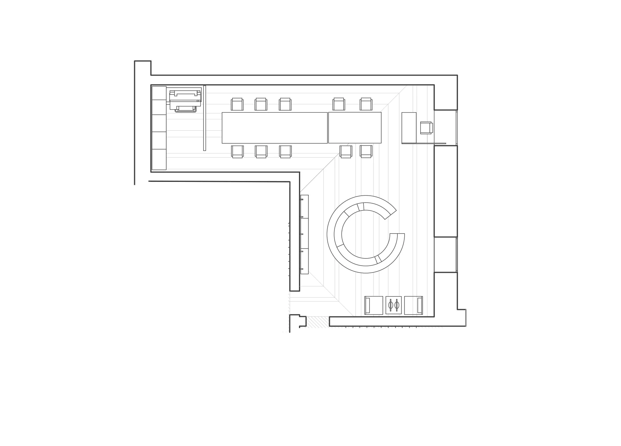
This project - Library of the Pinchuk Art Gallery Contemporary art Museum - served as a demonstration of the bureau’s extreme concentration, speed and teamwork. The main task of the project was to create a comfortable working space for the researches, employees of the library and its visitors. Library featured standard and oversize books, brochures and other materials. 

Inspired by art collection of the museum as well its interior, architects aimed to demonstrate that books were the epicentre of the events. To achieve this, pale colours and white prevail in all furniture and other design elements.

Architects used 6 mm steel sheets to manufacture book shelves which made the frame transparent and light. Console shelves for oversize materials keep the grand weight and strict horizont at the same time. In order to make the edge of the metallic construction original, it resembles the Dnipro river shoreline.

22. PAC LIBRARY-1.jpg
8dc08540581665.578509380bdba.jpg
7d5d8440581665.578509380c83c.jpg
84321840581665.578509380cccd.jpg
19c44d40581665.578509380ebb6.jpg
95d74e40581665.578509380d37f.jpg
e9030d40581665.578509380dce8.jpg
1f4fae40581665.578509380f08f.jpg
ad67bd40581665.578509380e61f.jpg
9037bf40581665.578509380f732.jpg
a1e40f40581665.578509381013b.jpg
8150e140581665.57850938123c1 (1).jpg
PAC Library.jpg