PROTAGONIST

ABOUT | BUILDING | DESIGN | CUSTOM-MADE ELEMENTS | EXTERIOR | BRANDING | TEAM 

 

Architects: Slava Balbek, Liza Kormilets, Yevhenii Kuchmin
Project Area: 165 sq. m
Project Year: 2019
Location: Kharkiv, Ukraine
Photo Credits: Andrey Bezuglov, Yevhenii Avramenko

 
Protagonist-balbekbureau.jpg
 

ABOUT

 
 

Protagonist is a cafe-bar located in a historical part of Kharkiv, Ukraine. It is a hangout place for the creative and imaginative people, to share ideas and express themselves. Every guest here is a ‘protagonist’ – a leading character of their storylines, and an advocate of the creative ideas.

***

Кафе-бар Протагоніст (рос. Протагонист) розташований в історичній частині Харкова. Нашим завданням було створити простір, який би об’єднав креативних людей міста під одним дахом для спілкування та обміну ідеями. Кожен гість у Протагоністі головний герой - провідний персонаж своєї сюжетної лінії та прихильник творчих ідей.

 
 
 
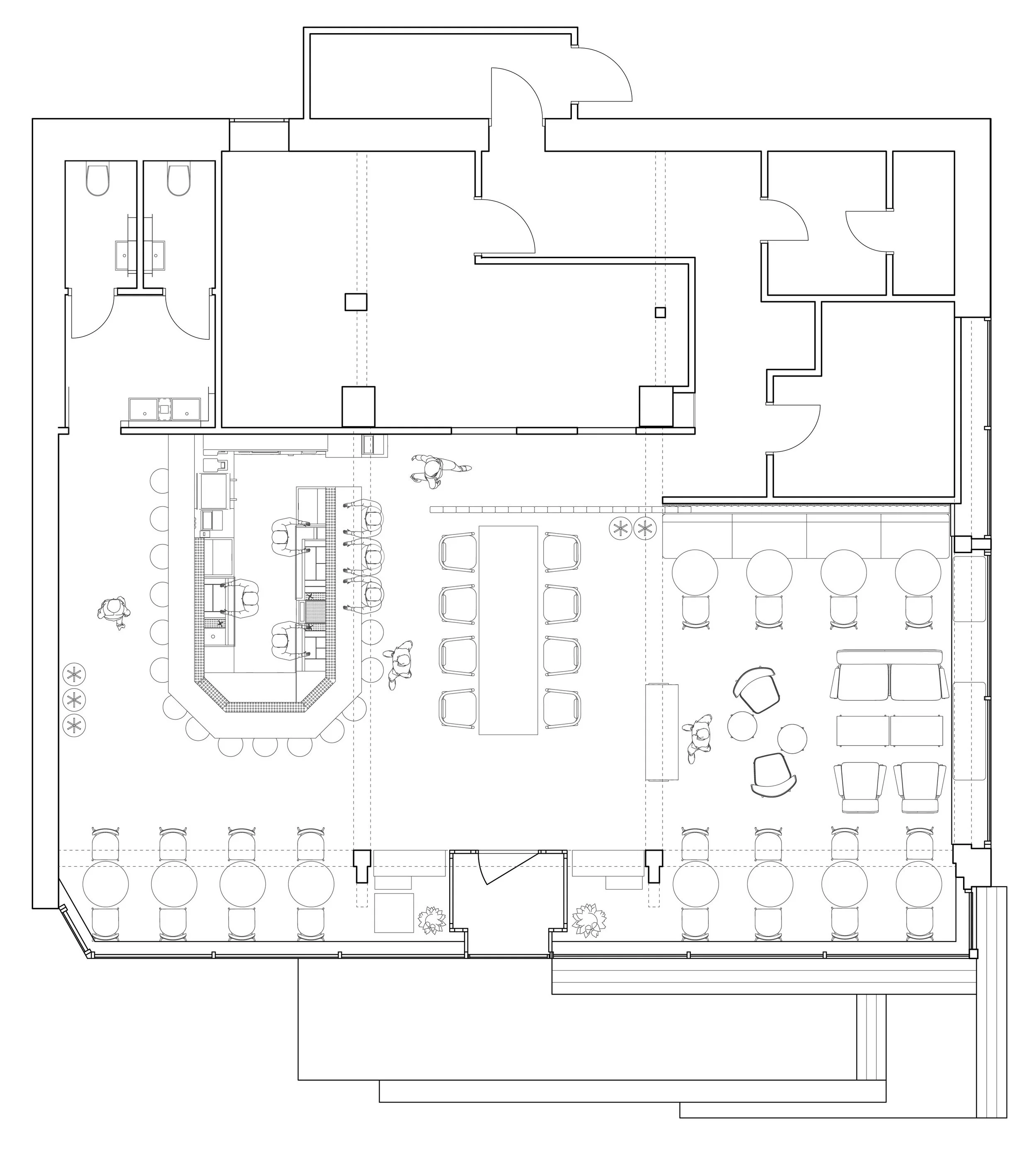
Protagonist floor plan.jpg
 
 
 
 
 

BUILDING

 
 

It is a loft with concrete pillars that we stripped off old finishes to reveal the beauty of the ceiling's textures and intricate backside prints of previously removed floor tiles. These were the key elements we wanted to preserve, thus emphasizing the original architectural design of the building.

***

Першочергово ми демонтували старе опорядження, щоб показати фактуру бетонних колон, стелі та рель’єф від зворотньої сторони підлогової плитки. Це були ключові елементи, які ми хотіли зберегти і таким чином підкреслити оригінальний архітектурний дизайн будівлі.

 
 
Protagonist before .jpg
 
 

Photo credits: Protagonist

 

DESIGN

 
 

One of our tasks was to divide the space into functional zones and process flows. Thus, we designated the back of the room as a technological zone, while the central part along panoramic windows became the main dining area. A communal table that can accommodate large groups was placed in the middle of the room, and a full-size bar was positioned to the left of the table. 

***

Одним із наших завдань було розділити простір на функціональні зони та технологічні потоки. Задню частину приміщення ми віддали під технологічні процеси, тоді як центральна, уздовж панорамних вікон, стала основною обідньою зоною. Спільний стіл, за яким може розміститися велика група людей, знаходиться посеред зали, а ліворуч від столу — великий бар.

 
 
Protagonist - balbek bureau.jpg
 
 

We stationed the DJ to the right side of the table, while soft seating – armchairs and sofas, - together with small tables for two were placed behind the DJ, along with panoramic windows. 

***

DJ-плейс розташований із правого боку від столу, а за ним м'яка посадка із кріслами та диваном.  Біля панорамних вікон знаходяться затишні маленькі столики для двох.

 
 
 
 

No bar can exist without music. The owners of the establishment, being true connoisseurs of quality sound, have placed a great emphasis on sonic equipment. They have chosen Void Acoustics, making it possible to not only play background music, and also host parties with invited DJs.

***

Певна річ, жоден бар не може існувати без музики. Власники закладу справжні шанувальники якісного звуку, а тому зробили акцент на звуковому обладнанні. Вони обрали акустичну систему Void Acoustics, що дозволяє не лише якісно грати музику фоново, а й проводити вечірки із запрошеними діджеями.

 
 

Photo credits: Protagonist

 
 

The hip theme of vintage design can be traced throughout the room. It can be seen in authentic wall panels of tempered glass, that we salvaged during the deconstruction of an old building. It is also in the DJ's control panel that we created by modernizing a vintage radiola. An aged mirror on the back wall creates an effect of the visual infinity, adding perspectives.

 ***

У закладі яскраво виражена вінтажна тематика. Стінова панель із склоблоків, які ми придбали після демонтажу старої будівлі, стала гарним доповненням нашого автентичного інтер’єру. Ми застосували той самий принцип, модернізувавши радянську радіолу під DJ-пульт. А вінтажне дзеркало на задній стіні залу створює ефект безкінечності простору.

 
 
 
 

Photo credits: Protagonist

 
Protagonist bar - balbek bureau.jpg
 
Protagonist - balbek bureau.jpg
 

Photo credits: Protagonist

 
 

Metal frame in the lavatories was designed in the style of an 'organizer' - to orderly hold and conceal all the necessary accessories. In tune with the general theme of the space, the interior of the lavatories features a peeling tile design.

***

Ми розробили металеву конструкцію в санвузлах за принципом органайзера, щоб приховати всі необхідні аксесуари. Стіни вбиральні виконані в тій же техніці, що і в основному залі.

 
 
 

CUSTOM-MADE ELEMENTS

 
 

Radiogram

The DJ console is a modernized Soviet-era radiogram that we bought on a classifieds website. We cut it into two and added the missing piece made of modern materials. Electric leads were threaded through the radiogram’s leg, and the music control unit was hidden inside.

***

DJ-пульт - це модернізована радіола радянських часів, яку ми придбали на сайті ОЛХ. ЇЇ розрізали навпіл, тоді як втрачений елемент замінили подібним вже із сучасних матеріалів. Електричні кабелі проходять крізь ніжку радіоли, а блок керування музикою знаходиться всередині.

 
 
Protagonist bar - balbek bureau.jpg
 
3.jpg
 
 

Photo credits: Protagonist

 
 

Light fixture

One of the focal points of the room is a light fixture suspended over the communal table. It is lifted to the ceiling during big parties, while the table is wheeled away to the glass wall.

***

Світильник, підвішений над великим обіднім столом, став центральним ядром закладу. Його піднімають до стелі під час великих вечірок, а стіл розвертають до стіни зі склоблоків.

 
 
Protagonist bar - balbek bureau.jpg
 
 

The shape of the light fixture is quite complex by no accident: it contains a special Protagonist phrase – 'this city needs a leading character', represented by a sound wave that was superimposed onto the oval shape by our project team.

***

Така складна форма світильника зовсім невипадкова — в ній закладена концепція назви закладу: «цьому місту потрібен головний герой». Саму фразу ми записали на диктофон, а її звукову хвилю використали як контур для світильника. 

 
 
Protagonist bar - balbek bureau.jpg
 
 
 
 
 

Furniture

With exception of the communal table, most of the furniture elements, were designed and produced by our furniture brand propro

***

Окрім загального столу, більшість предметів меблів були розроблені й виготовлені нашим меблевим брендом propro.

 
 
 
Protagonist - balbek bureau.jpg
 
Protagonist - balbek bureau.jpg
 

Photo credits: Protagonist

 

EXTERIOR

 
 

The facade is simple and unpretentious. In tune with the interior, dark foundation is finished with aluminum composite panels. By the main entrance, we created an open terrace that is also a long seating place that attracts street traffic.  

***

Фасад виконаний просто і лаконічно в унісон із інтер’єром. Для облицювання ми використали алюмінієві композитні панелі. Від головного входу простягається відкрита тераса, яка вливається у міський ритм. Тут збираються «головні герої» міста.

 
 
 
 

Photo credits: Protagonist

 

BRANDING

 
 

Branding for Protagonist bar has been designed by 3z Studio. The brand design is based on the following pillars: a new cool place where everyone is a leading character, a place of ideas where everything is clear and concise.

***

Брендинг для кафе-бару Протагоніст (рос. Протагонист) розроблено 3z Studio. Концепція дизайну базується на таких основах: нове класне місце, де кожен є головним героєм, місце ідей, де все чітко і зрозуміло.

 
 
 
 

TEAM

 
Protagonist team.jpg
 
Protagonist.jpg

Photo credits: Protagonist