PUSHKA

Architects: Slava Balbek​, Evgeniya Dubrovskaya, Artem Beregnoy
Project Area: 180 sq.m.
Project Year: 2018
Location: Kyiv, Ukraine
Photo credits: Andrey Bezuglov, Yevhenii Avramenko

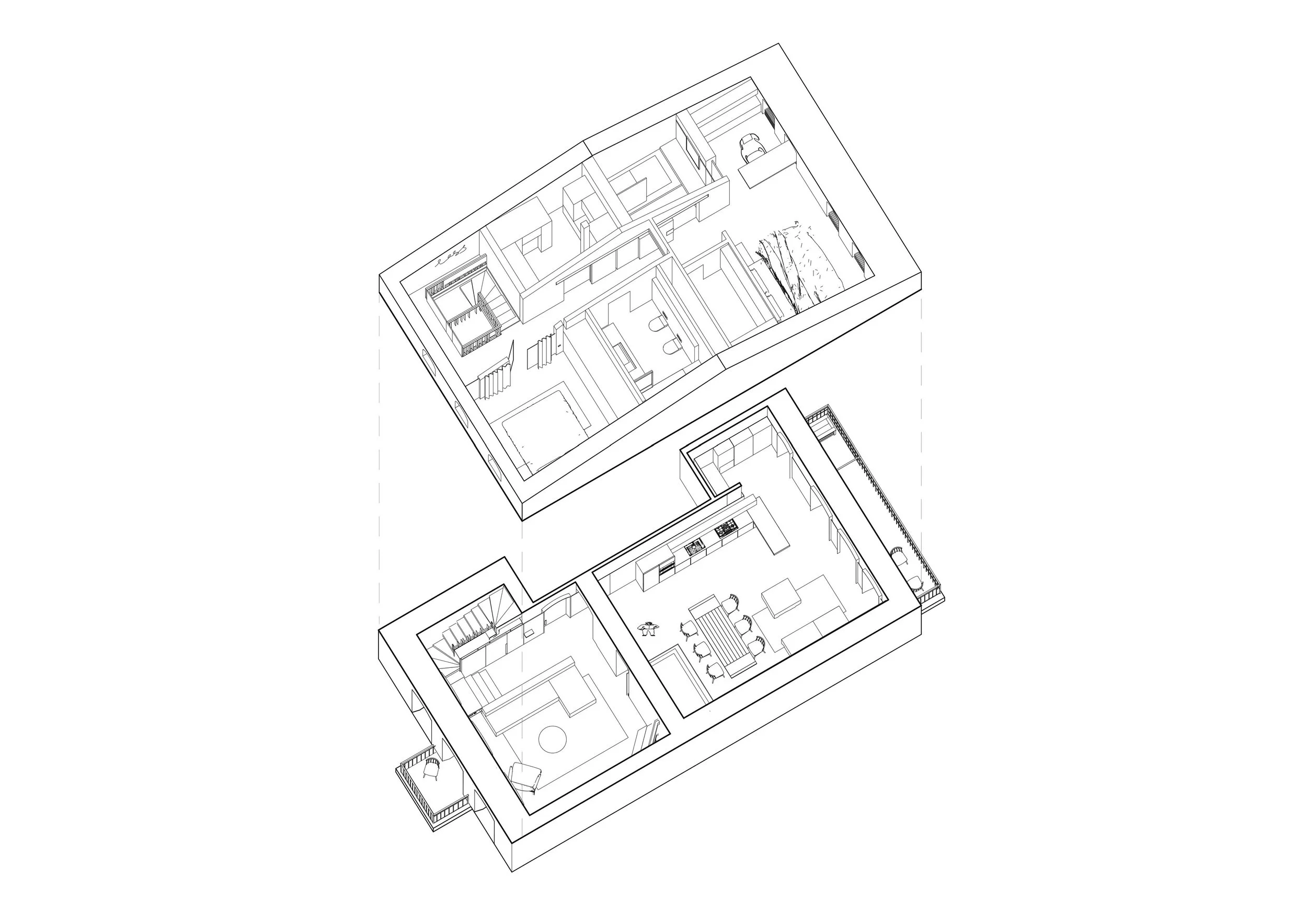
This apartment is located in a remarkable architectural monument. To preserve that spirit, the architects decided to partially remove the interior wall finishes, thereby opening an old brick and load-bearing ceiling beams. White panels along the entire first-floor perimeter, high ceilings and almost complete absence of partitions make the space absolutely cozy and comprehensive.

The second floor is divided into 3 zones - a master bedroom, a bathroom, a large closet and his office, laundry, a guest room and a bathroom.
Since the second floor is built on the top of the mansard roof, where both walls and windows are not perpendicular to the floor, the architects took a decision to hide them behind absolutely even panels placing the pantry in there.
It is worth mentioning the complicated structure of the staircase and its railing. Within this framework, engineers and designers endeavored to make it geometrically accurate.

The apartment demonstrates a contemporary and concise approach to the architectural design.

a8c33c68549079.5b60d688c3b06.jpg
8fbf8468549079.5b60d688c70bc.jpg
ff85ce68549079.5b60d688c3661.jpg
8adae968549079.5b60d688c02ca.jpg
c4c8b368549079.5b60d688c4c05.jpg
10566668549079.5b60d688c5524.jpg
3cb9d368549079.5b60d688c84ce.jpg
09330e68549079.5b60d688c079b.jpg
62bf9d68549079.5b60d688c633e.jpg
23b83668549079.5b60d688c0e09.jpg
9e588368549079.5b60d688c77af.jpg
ca9f0568549079.5b60d688c1694.jpg
aca37f68549079.5b60d688c59d4.jpg
fd2ca268549079.5b60d688c31ce.jpg
12ed3168549079.5b60d688c1bab.jpg
0dc9b668549079.5b60d688c5e97.jpg
8dece868549079.5b60d688c50ba.jpg
bb6b3468549079.5b60d688c26c4.jpg
1d9f6b68549079.5b60d688c43c8.jpg
ca747068549079.5b60d688c6c20.jpg
e49b0968549079.5b60d688c2d19.jpg
57680e68549079.5b60d688c21f0.jpg
fdf98868549079.5b60d688bfa7f.jpg
f92cf868549079.5b60d688c7c97.jpg
bd97f268549079.5b60d688caabd.jpg
15fadf68549079.5b60d688c91d7.jpg
Plans and drawings_Page_3.jpg