UA | ENG

 

RE:UKRAINE HOUSING
PILOT PROJECT

 
 
 
 

RE:Ukraine Housing is a temporary housing system for displaced persons our team has been working on since March 10th.

The next phase of the project is constructing a pilot for 15 displaced families.

 
 
 

To implement the project, we are looking for:

 
 
financial partner
Supplier
 
 
 

ABOUT THE PILOT PROJECT

 

1. Real model

A pilot project is required to showcase a model residential section, test the pace of construction, experiment with several construction technologies, and measure assemble and disassemble cycles.

2. Analysis

The trial project will allow us to get honest feedback from the people we initially created RE:Ukraine Housing for. Our team will be analyzing how residents interact with both each other and the space and optimizing the project considering their comments.

3. Experiment

The pilot will also help us test different construction technologies and find the best option in terms of time, labor costs, and energy efficiency.

 

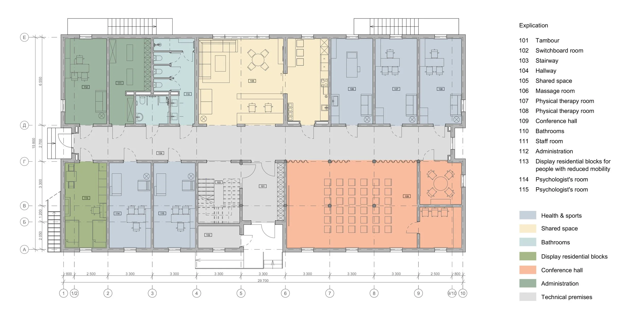
The pilot project will consist of two residential blocks and an outdoor workshop for construction experiments.

 
 
 
 

The rooms in the apartment block will be rented free of charge to families from different regions of Ukraine, where active hostilities take place. The block will also house the RE:Ukraine site office and several exhibition rooms.

 
 
 
 
 
 

The communal block will serve working and residential purposes. The first floor will be arranged as a coworking, where the residents can work or study remotely. The second floor will accommodate temporarily displaced persons.

 
 
 

The outdoor workshop is where the RE:Ukraine team will be exploring and testing various construction technologies. The workshop will be comprised of three technological modules: a sandwich panel module, a self-framing metal construction module, and a demountable module.

 
 
 
 
 

After considering various locations in the Kyiv region, we agreed upon a land plot of proper size, terrain, and in close proximity to local infrastructure. The pilot project will be constructed in the Bucha district.

 

PROJECT IMPLEMENTATION COST

 
 

Once the trial module serves its purpose, it can be disassembled and moved to a different location to be used as housing for agricultural workers for the sowing or harvesting season, military premises, or a temporary accommodation near the damaged buildings under reconstruction.

 

BECOME A PARTNER

 
 

DONATE

 

You can make a financial contribution to support the pilot project construction and transfer any comfortable amount of money to our Charitable Organization "Charity Fund "balbek bureau".

 

Support the pilot project construction (USD account):

IBAN: UA353052990000026007016807011
USREO Code: 44801817
Beneficiary: CHARITABLE ORGANIZATION “CHARITY FUND “BALBEK BUREAU”
Payment destination: Charity

 

Support the pilot project construction (EUR account):

IBAN: UA863052990000026000036804336
USREO Code: 44801817
Beneficiary: CHARITABLE ORGANIZATION “CHARITY FUND “BALBEK BUREAU”
Payment destination: Charity

 

Support the pilot project construction (UAH account):

IBAN: UA253052990000026006016805382
USREO Code: 44801817
Beneficiary: CHARITABLE ORGANIZATION “CHARITY FUND “BALBEK BUREAU”
Payment destination: Charity

 
 
 
 
 

RE:Ukraine Housing project aims to maintain a dignified lifestyle for people who have been forced to leave their homes. We believe it is possible to take away one’s house, but never one’s dignity.

The system is designed to be implemented in a short timeframe: residents can move into the town in 2-3 months from the beginning of construction. The 'constructor' system is easy to adapt to different types of terrain, site shapes, budget, and settlement density.

The modules, regardless of layout, have the same area and are grouped into self-sufficient residential sections. For the residents' comfort, each section has at least one bathroom, kitchen, and a shared space for relaxation and socialization.

Residential sections are grouped into full-fledged neighborhoods with playgrounds and green areas. If necessary, the quarter can be scaled to the size of a town, which can comfortably accommodate more than 8,000 people. 

 
 

TOGETHER TO VICTORY!