ZVD

Architects: Slava Balbek​, Nastya Mirzoyan, Yulia Barsuk
Project Area: 250 м2
Project Year: 2018
Location: Kyiv, Ukraine
Photo credits: Yevhenii Avramenko

This is a meeting place for the like-minded people, connoisseurs of American style, modern pop and hip-hop culture.

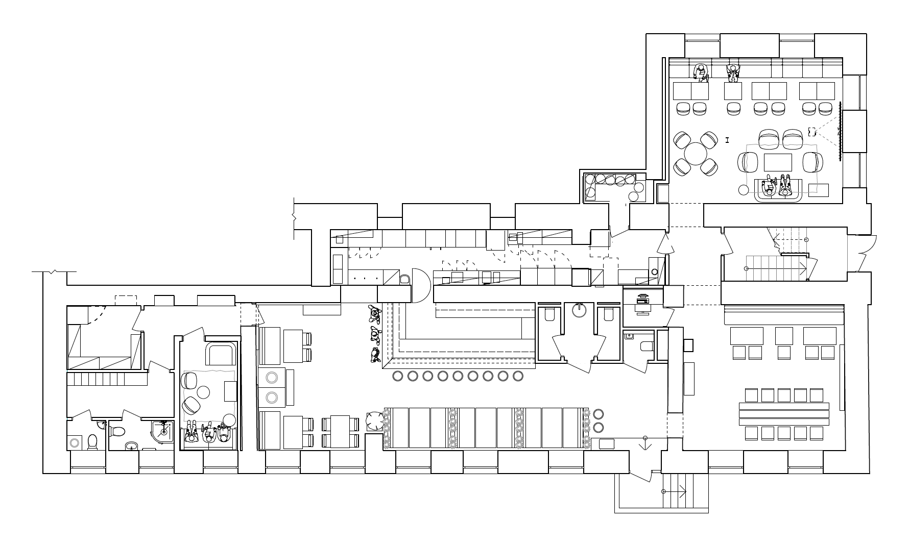
The establishment is cozy, bright, rich in elements and various photo zones. Meeting the needs of guests, it is modern and flexible for hosting events of different formats. Textures and finishes are from natural materials: wood, metal, leather. The color scheme is of sand shades. Such palette unveils an open space during the day, and conveys reflections of neon lights at night. The restaurant is divided into three rooms, each with its own theme and seating arrangement. While first and second room are light and open, the third is executed in dark colors and well suited for evenings, with more private and intimate atmosphere.The most striking elements of décor are tumble dryers with rotating drums, and Mars and Pepsi vending machines doors, which conceal WC block behind them.

This 24/7 downtown establishment represents a strong visual image refering to American culture.

Screen Shot 2019-01-26 at 9.14.43 PM.png
1.jpg
2.jpg
4.jpg
6.jpg
7.jpg
Screen Shot 2019-01-26 at 23.38.48.png
Screen Shot 2019-01-26 at 23.36.49.png
Screen Shot 2019-01-26 at 23.43.24.png
11.jpg
12.jpg
12.2.jpg
Screen Shot 2019-01-26 at 23.44.41.png